Аренда торгового помещения 191,1 м² ст. метро Сухаревская

Административно - жилое здание, расположено на Садовом кольце в 3 минутах ходьбы от станции метро "Сухаревская".

Адрес: г. Москва, ЦАО, р - он Красносельский, Большая Сухаревская площадь, д. 16/18с1.

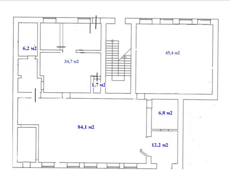
Аренда торгового помещения  - 191,1 м², 1 этаж, отдельный вход с Ананьевского переулка, выполнена отделка под магазин.

Назначение: кафе, банк, офис, магазин.

Презентабельный фасад.

Электрическая мощность: 40 кВт., возможно увеличение.

Стихийная парковка.

 Коммунальные платежи оплачиваются дополнительно.

 

Фотографии

Информация о помещении и здании

Тип помещения: помещение в жилом доме,есть витрина
Общая площадь, м²:191.0
Наличие подсобных помещений:есть
Количество помещений:8
Состояние ремонта:стандартная офисная отделка
Этаж:1
Количество этажей:8

Дополнительная информация

Коммуникации:телефон, интернет, Водопровод, электричество, Отопление
Есть санузел

Цена

350 000 руб.

Расположение

Местоположение:
Россия, Москва, ЦАО, Красносельское, м. Сухаревская, Сухаревская Б. пл., 16/18с1